Skip to content
sanctuaryvillas.com.vn
  • Trang chủ
  • Khách sạn
  • Villa
  • Tin tức
sanctuaryvillas.com.vn

Review Vinhomes Hậu Nghĩa: trải nghiệm sống theo phong cách đô thị châu Âu hiện đại

By Tháng 4 2, 2025 0
Mục lục

 

Dự án Vinhomes Hậu Nghĩa, nằm ở huyện Đức Hòa, tỉnh Long An, là một trong những dự án bất động sản nổi bật nhất hiện nay với quy mô lên đến 197,2ha. Mang trong mình sứ mệnh xây dựng một không gian sống đẳng cấp, Vinhomes Hậu Nghĩa không chỉ đáp ứng những tiêu chuẩn sống hiện đại mà còn luôn chú trọng đến hệ thống tiện ích đồng bộ, nhằm tạo ra môi trường sống tốt nhất cho cư dân.

Chủ Đầu Tư Vinhomes

Công ty Cổ phần Vinhomes, một thành viên của Tập đoàn Vingroup, là đơn vị tiên phong trong lĩnh vực bất động sản tại Việt Nam. Với phương châm mang đến không gian sống lý tưởng, Vinhomes các khu đô thị phức hợp hiện đại và tiện nghi, tiêu chuẩn cao, tạo nên sự khác biệt so với thị trường.

Vinhomes hiện sở hữu ba dòng sản phẩm chính: Vinhomes Sapphire, Vinhomes Ruby và Vinhomes Diamond, đáp ứng nhu cầu của từng nhóm đối tượng khách hàng từ bình dân đến cao cấp.

Vinhomes Hậu Nghĩa được kỳ vọng sẽ là một trong những dự án đẳng cấp nhất, với hạ tầng đồng bộ và tiện ích tiên tiến, góp phần vào việc nâng cao tiêu chuẩn sống cho cư dân.

Thông Tin Tổng Quan Dự Án Vinhomes Hậu Nghĩa

Tên dự án Vinhomes Hậu Nghĩa
Chủ đầu tư Tập đoàn Vingroup
Địa chỉ dự án Đường Quốc Lộ N2, Thị Trấn Hậu Nghĩa, Huyện Đức Hòa, Long An.
Diện tích khuôn viên 1,99 ha
Quy mô dự án 7 phân khu với nhiều sản phẩm đa dạng: 517 căn biệt thự, 4510 nhà phố và 5 Block chung cư
Mật độ xây dựng 36,81%
Thời gian khởi công Quý 2/2023
Thời gian hoàn thành dự kiến Quý 4/2026
Giá bán Từ 15 triệu đến 23 triệu/m2
Thời gian sở hữu Sổ hồng sở hữu lâu dài

Vị Trí Đắc Địa Dự Án Vinhomes Hậu Nghĩa

Dự án Vinhomes Hậu Nghĩa tọa lạc trên một vị trí chiến lược, thuận lợi cho cả an cư lẫn đầu tư với hạ tầng giao thông phát triển mạnh mẽ. Nơi đây gần các trục đường lớn như Quốc lộ N2, giúp cư dân dễ dàng di chuyển đến TP.HCM và các tỉnh miền Tây chỉ trong vòng 30 phút.

Review Vinhomes Hậu Nghĩa: trải nghiệm sống theo phong cách đô thị châu Âu hiện đạiVị trí đắc địa dự án Vinhomes Hậu Nghĩa

Dự án còn lân cận nhiều khu công nghiệp lớn, là cơ hội cho cư dân làm việc và kinh doanh, tạo nên một môi trường sống năng động và hiện đại.

Tiện Ích Nổi Bật Tại Vinhomes Hậu Nghĩa

Vinhomes Hậu Nghĩa không chỉ nổi bật với quy hoạch đồng bộ mà còn sở hữu hệ thống tiện ích hiện đại như:

  • Hồ nước ngọt rộng 18ha và công viên ven hồ với kiến trúc xanh
  • Trung tâm thương mại với các thương hiệu nổi tiếng
  • Các cơ sở giáo dục và y tế đạt tiêu chuẩn quốc tế
  • Phòng gym, bể bơi ngoài trời, và các khu thể thao phức hợp
  • An ninh 24/7, đảm bảo an toàn cho cư dân

Review Vinhomes Hậu Nghĩa: trải nghiệm sống theo phong cách đô thị châu Âu hiện đạiVinhomes Hậu Nghĩa được quy hoạch đồng bộ với hệ thống tiện ích hiện đại

Các tiện ích này không chỉ đáp ứng nhu cầu sống mà còn nâng cao chất lượng cuộc sống của cư dân.

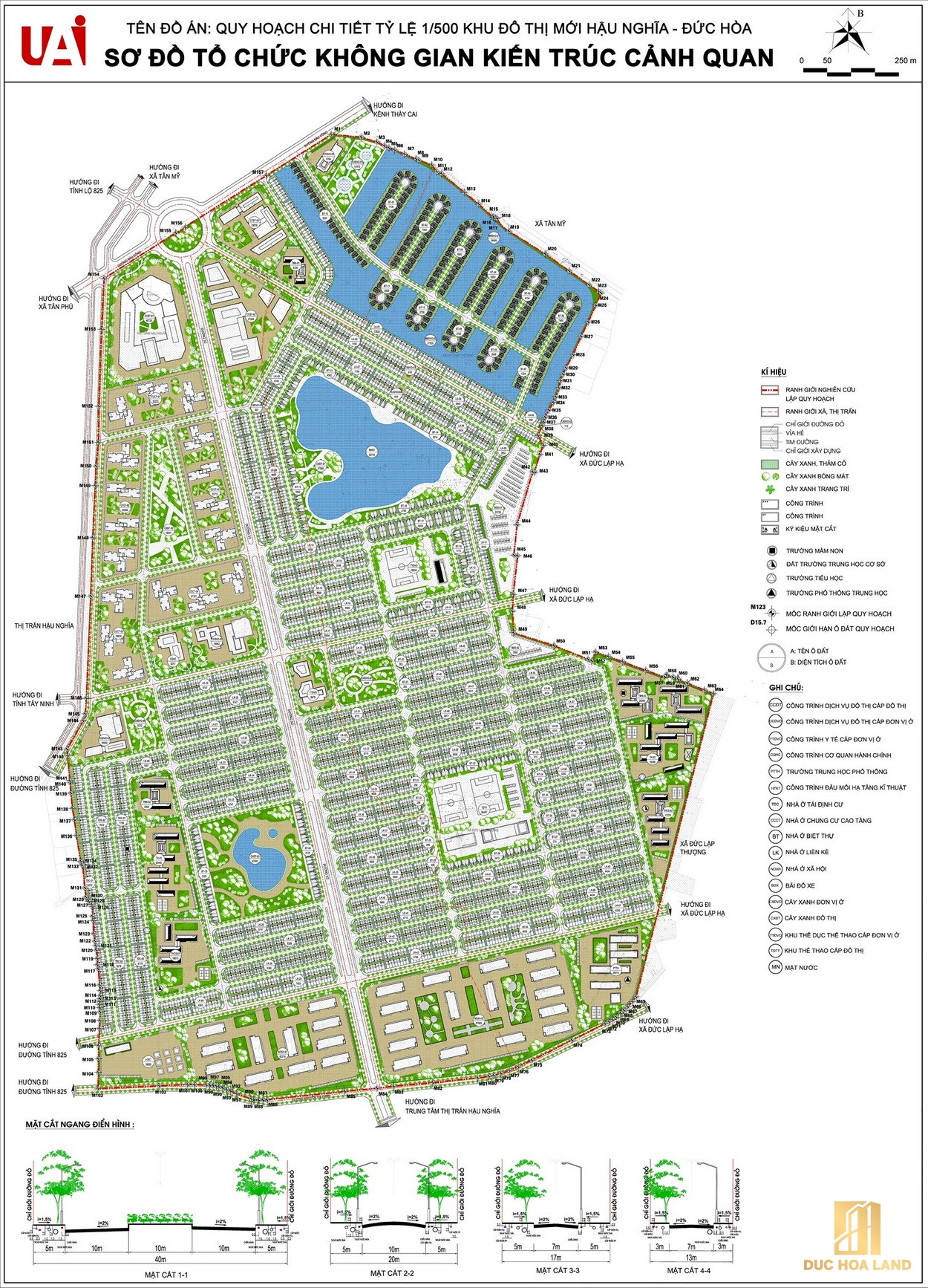
Mặt Bằng và Thiết Kế Dự Án

Vinhomes Hậu Nghĩa mang đến những thiết kế hiện đại, được quy hoạch bài bản. Các loại hình bất động sản bao gồm biệt thự đơn lập, biệt thự song lập, nhà phố thương mại và chung cư cao tầng, tất cả đều được thiết kế với tiêu chuẩn cao cấp.

Review Vinhomes Hậu Nghĩa: trải nghiệm sống theo phong cách đô thị châu Âu hiện đạiVinhomes Hậu Nghĩa được phát triển thành một khu đô thị hiện đại với quy hoạch bài bản

Đặc Điểm Các Loại Hình Bất Động Sản

  • Biệt thự cao cấp: Biệt thự đơn lập và song lập với thiết kế sang trọng.
  • Nhà phố thương mại: Kết hợp giữa nhà ở và không gian kinh doanh, đáp ứng nhu cầu phong phú của cư dân.
  • Chung cư cao tầng: Cung cấp không gian sống tiện nghi với chất lượng cao.

Giá Bán và Tiến Độ Thanh Toán

Loại hình Diễn Tích Giá bán
Căn hộ studio 26.9 – 27.7 m2 3.14 – 3.68 tỷ
Nhà phố liền kề thường 62.5 – 100 m2 17 – 36 tỷ

Tiến độ thanh toán linh hoạt, tạo điều kiện thuận lợi nhất cho khách hàng.

Tiến Độ Triển Khai Dự Án

Dự án đang trong quá trình thực hiện các hạng mục theo đúng tiến độ quy định. Dự kiến đến giữa năm 2028 sẽ chính thức vận hành khu đô thị, mang đến những trải nghiệm sống chất lượng cho cư dân.

Kết Luận

Dự án Vinhomes Hậu Nghĩa không chỉ là một sản phẩm bất động sản mà còn là một cơ hội đầu tư đắc giá trong tương lai. Với vị trí vàng, tiện ích đồng bộ và thiết kế hiện đại, chắc chắn nơi đây sẽ trở thành một trong những nơi an cư lý tưởng nhất tại Long An.

Hãy khám phá thêm các thông tin chi tiết hơn tại sanctuaryvillas.com.vn.

Share
facebookShare on FacebooktwitterShare on TwitterpinterestShare on Pinterest
linkedinShare on LinkedinvkShare on VkredditShare on ReddittumblrShare on TumblrviadeoShare on ViadeobufferShare on BufferpocketShare on PocketwhatsappShare on WhatsappviberShare on ViberemailShare on EmailskypeShare on SkypediggShare on DiggmyspaceShare on MyspacebloggerShare on Blogger YahooMailShare on Yahoo mailtelegramShare on TelegramMessengerShare on Facebook Messenger gmailShare on GmailamazonShare on AmazonSMSShare on SMS
Post navigation
Previous post

Khách sạn Pearl River Hội An Hotel Spa

Next post

Khách sạn Lan Châu Cửa Lò Nghệ An

Related Posts

Categories Tin tức Review Vinhomes Hậu Nghĩa: trải nghiệm sống theo phong cách đô thị châu Âu hiện đại

Khu nghỉ dưỡng được làm hoàn toàn từ gỗ ở Bali

Categories Tin tức Review Vinhomes Hậu Nghĩa: trải nghiệm sống theo phong cách đô thị châu Âu hiện đại

Nghỉ dưỡng tại Maximilan Đà Nẵng và trải ngiệm chiêm ngưỡng biển Mỹ Khê thơ mộng từ trên cao

Categories Tin tức Review Vinhomes Hậu Nghĩa: trải nghiệm sống theo phong cách đô thị châu Âu hiện đại

Trải nghiệm khám phá chất lượng nghỉ dưỡng 5 sao cao cấp tại trung tâm thủ đô ‘xứ củ sâm’ – JW Marriott Hotel Seoul

Leave a Comment Hủy

Bài viết mới nhất

Categories Uncategorized Nổ hũ bảo giới chiêu tài

Nổ hũ bảo giới chiêu tài – Trải nghiệm may mắn tại MELBET

Đá gà dồn ép liên hoàn

Đá gà dồn ép liên hoàn – Chiến thuật áp đảo đối thủ nhanh chóng

Đá gà nhịp đá chiến lược

Đá gà nhịp đá chiến lược – Bí quyết nâng tầm chiến kê Ppvip

Kèo đội yếu toàn trận

Kèo đội yếu toàn trận – Chiến lược cược thông minh tại ck33

Bắn cá phá thế vây

Bắn cá phá thế vây – Lối chơi đột phá giữa đại dương

Bắn cá nâng cấp súng mạnh

Bắn cá nâng cấp súng mạnh – Săn thưởng cực đã tay tại r777

Xổ số miền Trung dự đoán hôm nay

Xổ số miền Trung dự đoán hôm nay – Cơ hội trúng thưởng nhanh chóng

Bắn cá chi viện hỏa lực

Bắn cá chi viện hỏa lực – Lối chơi phối hợp bùng nổ sức mạnh

Đá gà thế đánh toàn diện

Đá gà thế đánh toàn diện: Bí quyết làm chủ mọi trận chiến

Poker kiểm soát nhịp cược

Poker kiểm soát nhịp cược – Chiến thuật tối ưu lợi thế trên bàn

Giới thiệu

SANCTUARYVILLAS.VN là nền tảng đánh giá và chia sẻ thông tin về các khách sạn và villa uy tín tại Việt Nam, giúp người dùng dễ dàng tìm kiếm và lựa chọn nơi lưu trú phù hợp nhất.

Liên kết đối tác: Ax88 – bingo-online.us.com

Liên hệ

Phone: 0916 878 080
Emmail: contact@cymbalta.company
Địa chỉ: 109 Trần Hưng Đạo, Cửa Nam, Cầu Giấy, Hà Nội, Việt Nam

Trang liên hệ

  • Trang chủ
Copyright © 2026 sanctuaryvillas.com.vn
Danh mục
  • Trang chủ
  • Khách sạn
  • Villa
  • Tin tức