Skip to content
sanctuaryvillas.com.vn
  • Trang chủ
  • Khách sạn
  • Villa
  • Tin tức
sanctuaryvillas.com.vn

Review Khu phức hợp Đông Tăng Long Quận 9: Vị trí đắc địa, đẳng cấp từ chất lượng

By Tháng 4 2, 2025 0
Mục lục

 

Khu đô thị Đông Tăng Long tại Quận 9, TP Hồ Chí Minh không chỉ nổi bật với quy mô lớn mà còn với sự quy hoạch đồng bộ và hiện đại, mang tới một không gian sống và phát triển đẳng cấp cho cư dân. Dự án này không chỉ đáp ứng nhu cầu chỗ ở mà còn đóng vai trò quan trọng trong việc cải cách hạ tầng và đa dạng hóa thị trường bất động sản tại khu vực.

Tổng Quan về Dự Án Đông Tăng Long

Dự án Đông Tăng Long do Công ty Cổ phần Phát triển Nhà và Đô Thị (HUD) là đơn vị chủ đầu tư, trải rộng trên diện tích 159,36 ha. Đây là nơi hội tụ đa dạng các kiểu hình bất động sản, từ nhà phố, biệt thự, shophouse đến căn hộ chung cư. Mục tiêu hướng đến là tạo nên một khu đô thị hoàn chỉnh với hạ tầng đồng bộ và các tiện ích hiện đại.

Tầm Nhìn và Giá Trị Của Chủ Đầu Tư

Review Khu phức hợp Đông Tăng Long Quận 9: Vị trí đắc địa, đẳng cấp từ chất lượngLogo HUD

Tổng Công ty Đầu tư Phát triển Nhà và Đô thị (HUD) là một thương hiệu nổi bật trong lĩnh vực phát triển bất động sản tại Việt Nam. Qua hơn 30 năm phát triển, HUD luôn nỗ lực tạo ra các sản phẩm chất lượng, phục vụ nhu cầu nhà ở cho người dân, đặc biệt là nhóm đối tượng thu nhập thấp và trung bình.

HUD đã ghi nhiều dấu ấn trong ngành xây dựng và phát triển đô thị. Hơn 25 khu đô thị đã được hình thành, đóng góp đáng kể vào việc cải thiện chất lượng cuộc sống và thúc đẩy sự phát triển kinh tế tại nhiều tỉnh thành trong cả nước.

Lịch Sử và Các Thành Tựu Nổi Bật

  • Giải thưởng Huân Chương Lao động: HUD đã nhận được các giải thưởng cao quý như Huân Chương Lao động hạng Nhất năm 2022.
  • Các Dự Án Điển Hình: Dự án nhà ở xã hội tỉnh Hà Nam và Đà Lạt Paradise Garden là một trong số nhiều dự án tiêu biểu của HUD.

Mô Tả Chi Tiết Về Khu Dân Cư Đông Tăng Long

Thông Tin Đáng Chú Ý

Đông Tăng Long được quy hoạch với mật độ xây dựng hợp lý, gồm các khu vực chức năng đa dạng, từ nhà liền kề có sân vườn, biệt thự đơn lập, đến căn hộ chung cư. Dự án được đánh giá cao về sự cân nhắc hợp lý giữa không gian sống và tiện ích công cộng.

Tên dự án Đông Tăng Long
Vị trí Phường Trường Thạnh, TP Thủ Đức
Chủ đầu tư Công Ty Phát Triển NHÀ và Đô Thị (HUD)
Tổng diện tích 159,36 ha
Mật độ xây dựng 43% đất ở, các công trình công cộng: 8,22%
Quy mô dân số Khoảng 35.000 người
Sản phẩm Nhà phố, biệt thự, căn hộ
Khởi công Quý 3/2018
Bàn giao Năm 2021

Khu đô thị này không chỉ đáp ứng nhu cầu sinh sống mà còn tạo ra nhiều cơ hội đầu tư hấp dẫn cho các cá nhân, nhà đầu tư trong và ngoài nước.

Vị Trí Chiến Lược

Khu đô thị Đông Tăng Long được đặt tại vị trí vô cùng thuận lợi với ba mặt tiền lớn, giúp kết nối dễ dàng với các khu vực lân cận và trung tâm thành phố.

Review Khu phức hợp Đông Tăng Long Quận 9: Vị trí đắc địa, đẳng cấp từ chất lượngĐông Tăng Long Quận 9

Dự án nằm gần các tuyến đường chính như Nguyễn Duy Trinh, Lã Xuân Oai, và Vành Đai 3, giúp cư dân di chuyển đến nhiều điểm quan trọng trong thành phố chỉ trong vài phút. Khoảng cách từ dự án đến nhiều cơ sở hạ tầng như bệnh viện, trường học và khu công nghệ cao cũng rất ngắn, tạo sự thuận lợi tối đa cho sinh hoạt hàng ngày.

Quy Hoạch Và Tiện Ích Xung Quanh

Dự án có kế hoạch phát triển không chỉ bao gồm hạ tầng giao thông mà còn kiến tạo một cộng đồng sống văn minh, với đầy đủ các dịch vụ tiện ích. Khu vực gần dự án sẽ có các trường học, bệnh viện, khu vui chơi giải trí và các trung tâm thương mại hiện đại.

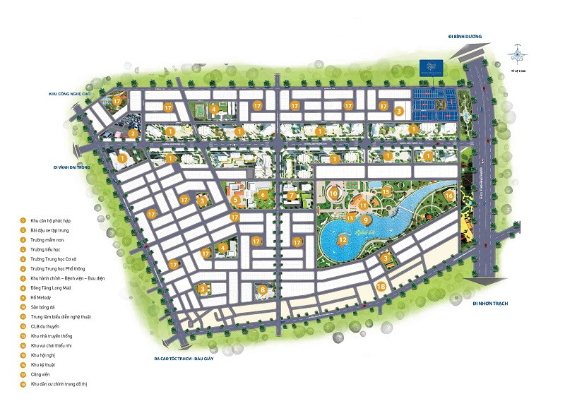
Tiện Ích Nội Khu và Ngoại Khu

Tiện Ích Nội Khu

Review Khu phức hợp Đông Tăng Long Quận 9: Vị trí đắc địa, đẳng cấp từ chất lượngMặt bằng tiện ích nội khu

  • Hệ thống giáo dục từ mầm non đến phổ thông
  • Khu chăm sóc sức khỏe và bệnh viện nội khu
  • Các khu thể thao, hồ bơi, công viên giải trí
  • Trung tâm thương mại với nhiều lựa chọn mua sắm

Tiện Ích Ngoại Khu

Ngoài các tiện ích nội khu, Đông Tăng Long còn được hưởng lợi từ nhiều tiện ích ngoại khu hiện đại.

Review Khu phức hợp Đông Tăng Long Quận 9: Vị trí đắc địa, đẳng cấp từ chất lượngTiện ích ngoại khu

Cư dân chỉ mất tối đa 20 phút để đến được trung tâm thành phố, sân golf, và nhiều khu du lịch nổi tiếng lân cận như Suối Tiên và Làng Đại học.

Mặt Bằng Chi Tiết và Thiết Kế Nhà Ở Tại Đông Tăng Long

Khu đô thị mang đến nhiều lựa chọn về thiết kế nhà ở, từ nhà phố vườn cho tới biệt thự cao cấp.

  • Nhà phố vườn: Thiết kế hiện đại, tối ưu hóa không gian sống, với diện tích từ 5x20m.
  • Biệt thự: Có sự lựa chọn biệt thự đơn lập và song lập, thiết kế sang trọng và đồng bộ.

Cập Nhật Giá Bán và Giá Thuê

Hiện tại, nhiều sản phẩm ở Đông Tăng Long đã được bán hết, tuy nhiên vẫn còn một số nhà chuyển nhượng với mức giá cạnh tranh.

Sản phẩm Diện tích Giá sang nhượng
Nhà phố 5x20m Từ 6,8 – 11,5 tỷ/căn
Biệt thự đơn lập 10x20m Từ 15 – 23 tỷ/căn
Biệt thự song lập 8x21m Từ 11,5 – 12,5 tỷ/căn
Shophouse 5x20m, 5x25m Từ 7,1 – 13,5 tỷ/căn

Lý Do Nên Đầu Tư Vào Đông Tăng Long

Vị Trí Lợi Thế

Với vị trí gần trung tâm và kết nối giao thông thuận lợi, Đông Tăng Long đang thu hút sự quan tâm lớn từ các nhà đầu tư. Dự án mang lại nhiều lợi ích vượt trội cho cư dân và nhà đầu tư nhờ hạ tầng ngày càng phát triển.

Giá Trị Sống Cao

Không chỉ dừng lại ở việc cung cấp không gian sống đẹp, dự án còn chú trọng vào chất lượng cuộc sống. Một không gian sống gần gũi với thiên nhiên, tiện ích đa dạng là điều mà cư dân Đông Tăng Long có thể tận hưởng hàng ngày.

Tiềm Năng Tăng Giá Bất Động Sản

Sự phát triển nhanh chóng của hạ tầng và gia tăng dân số tại Quận 9 dự báo sẽ tạo cơ hội lớn cho giá trị bất động sản gia tăng trong tương lai gần.

Kết Luận

Dự án Đông Tăng Long không chỉ mang đến một không gian sống lý tưởng mà còn hứa hẹn rất nhiều tiềm năng đầu tư cho tương lai. Với một kế hoạch phát triển đồng bộ và tiện ích hiện đại, đây là nơi lý tưởng cho những ai tìm kiếm cơ hội an cư lập nghiệp hoặc đầu tư sinh lời. Hãy truy cập vào sanctuaryvillas.com.vn để được cập nhật thêm thông tin chi tiết về dự án này và những cơ hội bất động sản khác.

Share
facebookShare on FacebooktwitterShare on TwitterpinterestShare on Pinterest
linkedinShare on LinkedinvkShare on VkredditShare on ReddittumblrShare on TumblrviadeoShare on ViadeobufferShare on BufferpocketShare on PocketwhatsappShare on WhatsappviberShare on ViberemailShare on EmailskypeShare on SkypediggShare on DiggmyspaceShare on MyspacebloggerShare on Blogger YahooMailShare on Yahoo mailtelegramShare on TelegramMessengerShare on Facebook Messenger gmailShare on GmailamazonShare on AmazonSMSShare on SMS
Post navigation
Previous post

Review The Peak Quận 7: sự kết hợp mượt mà giữa cách sống hiện đại và thiên nhiên yên bình

Next post

Review The Rivana: Tổ hợp căn hộ và tiện ích đẳng cấp ven sông Sài Gòn

Related Posts

Categories Tin tức Review Khu phức hợp Đông Tăng Long Quận 9: Vị trí đắc địa, đẳng cấp từ chất lượng

Khu nghỉ dưỡng được làm hoàn toàn từ gỗ ở Bali

Categories Tin tức Review Khu phức hợp Đông Tăng Long Quận 9: Vị trí đắc địa, đẳng cấp từ chất lượng

Nghỉ dưỡng tại Maximilan Đà Nẵng và trải ngiệm chiêm ngưỡng biển Mỹ Khê thơ mộng từ trên cao

Categories Tin tức Review Khu phức hợp Đông Tăng Long Quận 9: Vị trí đắc địa, đẳng cấp từ chất lượng

Trải nghiệm khám phá chất lượng nghỉ dưỡng 5 sao cao cấp tại trung tâm thủ đô ‘xứ củ sâm’ – JW Marriott Hotel Seoul

Leave a Comment Hủy

Bài viết mới nhất

Categories Uncategorized Nổ hũ bảo giới chiêu tài

Nổ hũ bảo giới chiêu tài – Trải nghiệm may mắn tại MELBET

Đá gà dồn ép liên hoàn

Đá gà dồn ép liên hoàn – Chiến thuật áp đảo đối thủ nhanh chóng

Đá gà nhịp đá chiến lược

Đá gà nhịp đá chiến lược – Bí quyết nâng tầm chiến kê Ppvip

Kèo đội yếu toàn trận

Kèo đội yếu toàn trận – Chiến lược cược thông minh tại ck33

Bắn cá phá thế vây

Bắn cá phá thế vây – Lối chơi đột phá giữa đại dương

Bắn cá nâng cấp súng mạnh

Bắn cá nâng cấp súng mạnh – Săn thưởng cực đã tay tại r777

Xổ số miền Trung dự đoán hôm nay

Xổ số miền Trung dự đoán hôm nay – Cơ hội trúng thưởng nhanh chóng

Bắn cá chi viện hỏa lực

Bắn cá chi viện hỏa lực – Lối chơi phối hợp bùng nổ sức mạnh

Đá gà thế đánh toàn diện

Đá gà thế đánh toàn diện: Bí quyết làm chủ mọi trận chiến

Poker kiểm soát nhịp cược

Poker kiểm soát nhịp cược – Chiến thuật tối ưu lợi thế trên bàn

Giới thiệu

SANCTUARYVILLAS.VN là nền tảng đánh giá và chia sẻ thông tin về các khách sạn và villa uy tín tại Việt Nam, giúp người dùng dễ dàng tìm kiếm và lựa chọn nơi lưu trú phù hợp nhất.

Liên kết đối tác: Ax88 – bingo-online.us.com

Liên hệ

Phone: 0916 878 080
Emmail: contact@cymbalta.company
Địa chỉ: 109 Trần Hưng Đạo, Cửa Nam, Cầu Giấy, Hà Nội, Việt Nam

Trang liên hệ

  • Trang chủ
Copyright © 2026 sanctuaryvillas.com.vn
Danh mục
  • Trang chủ
  • Khách sạn
  • Villa
  • Tin tức