Skip to content
sanctuaryvillas.com.vn
  • Trang chủ
  • Khách sạn
  • Villa
  • Tin tức
sanctuaryvillas.com.vn

Review dự án Zenity: Ốc đảo xanh giữa lòng đô thị năng động

By Tháng 4 2, 2025 0
Mục lục

 

Dự án Zenity Capitaland là một trong những căn hộ cao cấp mới nhất do tập đoàn nổi tiếng Capitaland phát triển, chính thức ra mắt vào năm 2022. Nằm tại khu vực trung tâm Quận 1, TP.HCM, Zenity hứa hẹn sẽ mang đến một không gian sống lý tưởng với 198 căn hộ được thiết kế hiện đại, sang trọng, phục vụ cho đối tượng cư dân yêu thích sự đẳng cấp và tiện nghi.

Chủ đầu tư Capitaland – Tên tuổi lớn trong ngành bất động sản

CapitaLand Development, một thành viên thuộc CapitaLand Group, là nhà đầu tư chủ chốt của dự án Zenity. Thương hiệu này đã khẳng định được vị thế của mình tại Châu Á với hơn 25 năm kinh nghiệm trong lĩnh vực bất động sản. Có trụ sở chính tại Singapore, CapitaLand đã mở rộng hoạt động ở nhiều thị trường như Việt Nam, Trung Quốc, Indonesia và hơn thế nữa. Chúng tôi có thể kể đến những dự án tiêu biểu của họ tại Việt Nam như The Vista, Feliz en Vista, D1MENSION và nhiều dự án khác, mỗi dự án đều mang lại giá trị sống cao cấp cho cư dân.

Review dự án Zenity: Ốc đảo xanh giữa lòng đô thị năng độngHệ sinh thái Capitaland

Không chỉ chăm chú vào việc phát triển bất động sản, CapitaLand còn thể hiện trách nhiệm xã hội qua nhiều hoạt động cộng đồng cũng như bảo vệ môi trường. Với cam kết mạnh mẽ về phát triển bền vững, tập đoàn này đã nhận được nhiều giải thưởng danh giá, khẳng định uy tín của mình trong lĩnh vực bất động sản.

Tổng quan về dự án Zenity Capitaland

Với vị trí đắc địa tại Quận 1, Zenity Capitaland được coi là “ốc đảo xanh” giữa lòng đô thị sôi động. Dự án đã hoàn thiện 100% và sẵn sàng bàn giao cho cư dân. Sau đây là thông tin chi tiết về Zenity:

Tên dự án Zenity
Vị trí 608 Võ Văn Kiệt, Phường Cầu Kho, Quận 1, TPHCM
Chủ đầu tư CapitaLand Development
Đơn vị quản lý Savills
Tổng diện tích 2,948.2m²
Mật độ xây dựng 31,2%
Loại hình sản phẩm Căn hộ cao cấp, Officetel, Duplex, Shophouse
Quy mô 1 block cao 21 tầng, 198 căn hộ
Diện tích căn hộ 69 – 85 m2 (2 phòng ngủ), 97 – 103 m2 (3 phòng ngủ), 127 – 164 m2 (Duplex), 183 m2 (Penthouse)
Khởi công Quý 2/2022
Pháp lý Sổ hồng
Hình thức sở hữu Lâu dài cho người Việt, 50 năm cho người nước ngoài

Vị trí vàng của dự án Zenity

Zenity nằm ngay mặt tiền đại lộ Võ Văn Kiệt, một trong những tuyến đường huyết mạch của TP.HCM. Vị trí này có khả năng kết nối nhanh chóng với các quận lân cận như Quận 3, Quận 4, Quận 10 và nhiều huyện khác, giúp cư dân dễ dàng di chuyển và hưởng thụ những tiện ích xung quanh.

Review dự án Zenity: Ốc đảo xanh giữa lòng đô thị năng độngVị trí dự án Zenity

Kết nối tiện ích xuất sắc

Từ Zenity, cư dân chỉ mất 5 phút để đến Quận 5 và 10 phút để tới trung tâm tài chính Thành phố Thủ Đức. Khu vực xung quanh còn có nhiều tiện ích như bệnh viện, trường học quốc tế và trung tâm thương mại. Nhờ hạ tầng giao thông phát triển, tắc nghẽn sẽ trở thành vấn đề ít xảy ra đối với cư dân Zenity.

Kết nối hạ tầng thuận lợi

Hạ tầng giao thông quanh Zenity được phát triển với nhiều tuyến xe buýt nhanh BRT, cầu Thủ Thiêm và nhiều dự án giao thông khác đang trong quá trình hoàn thiện, tạo nên sự thuận tiện trong việc di chuyển cho cư dân.

Tiện ích nội khu đẳng cấp tại Zenity

Dự án Zenity không chỉ mang đến những căn hộ cao cấp mà còn hàng loạt tiện ích nội khu được thiết kế tỉ mỉ để phục vụ nhu cầu của cư dân.

Review dự án Zenity: Ốc đảo xanh giữa lòng đô thị năng độngMặt bằng tiện ích tại Zenity

Tiện ích thương mại

  • Sảnh tiếp khách sang trọng, mang đến trải nghiệm như tại một khách sạn 5 sao.
  • Khu vực đỗ xe rộng rãi, với hệ thống thông minh và an ninh cao.

Tiện ích giải trí

  • Hồ bơi Lagoon chuẩn quốc tế với khu vực riêng cho người lớn và trẻ em.
  • Khu vui chơi trẻ em với thiết bị hiện đại.
  • Khu vực BBQ bên bờ hồ bơi lý tưởng cho việc thư giãn và tổ chức sự kiện.

Tiện ích khác

Cư dân còn có thể tận hưởng nhiều tiện ích khác như phòng gym, không gian làm việc chung, dịch vụ an ninh chuyên nghiệp và các khu vực thư giãn.

Mặt bằng chi tiết dự án Zenity

Mặt bằng của dự án Zenity được thiết kế tinh tế, bao gồm 2 tháp cao 21 tầng, cung ứng gần 200 căn hộ cao cấp. Các căn hộ được bố trí hợp lý để tận dụng ánh sáng và không gian xanh xung quanh.

Review dự án Zenity: Ốc đảo xanh giữa lòng đô thị năng độngPhối cảnh dự án ZenityReview dự án Zenity: Ốc đảo xanh giữa lòng đô thị năng độngMặt bằng tổng thể dự án ZenityReview dự án Zenity: Ốc đảo xanh giữa lòng đô thị năng độngMặt bằng tầng 1 – 2 hầm để xe

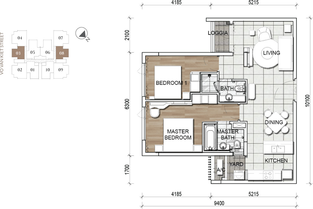
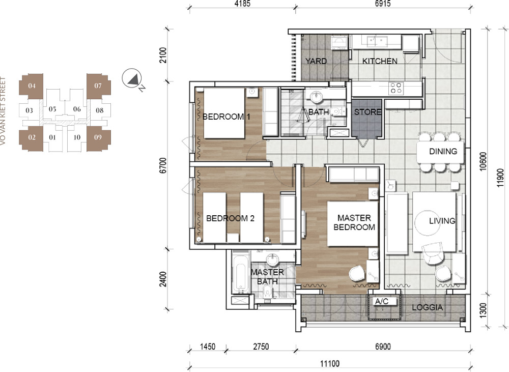
Thiết kế căn hộ tại Zenity Capitaland

Các căn hộ được thiết kế hiện đại với không gian thông thoáng, đảm bảo ánh sáng và gió tự nhiên luôn tràn ngập. Phòng ngủ và phòng khách được xây dựng với tiêu chuẩn cao, tạo nên không gian sống thoải mái và ấm cúng cho gia đình.

Review dự án Zenity: Ốc đảo xanh giữa lòng đô thị năng độngLayout căn hộ 2 phòng ngủ DeluxeReview dự án Zenity: Ốc đảo xanh giữa lòng đô thị năng độngLayout căn hộ 2 phòng ngủ ExecutiveReview dự án Zenity: Ốc đảo xanh giữa lòng đô thị năng độngLayout căn hộ 3 phòng ngủ Deluxe

Nhà mẫu dự án Zenity Capitaland

Nhà mẫu của Zenity thể hiện sự kết hợp hài hòa giữa phong cách hiện đại và sự tối giản, đảm bảo tối ưu hóa không gian sống cho cư dân.

Review dự án Zenity: Ốc đảo xanh giữa lòng đô thị năng độngNhà mẫu dự án ZenityReview dự án Zenity: Ốc đảo xanh giữa lòng đô thị năng độngNhà mẫu dự án Zenity

Giá bán căn hộ Zenity Capitaland mới nhất

Giá bán cho các căn hộ tại Zenity giao động từ 103.9 triệu/m² đến 233 triệu/m². Đây là mức giá hợp lý cho một nơi sống đầy đủ tiện ích trong khu vực trung tâm thành phố.

Căn hộ Diện tích Giá bán Giá thuê
2 phòng ngủ 69 – 85 m2 8,19 – 14,02 tỷ 14 – 19 triệu/tháng
3 phòng ngủ 97 – 103 m2 10,34 – 17,95 tỷ 20 – 23 triệu/tháng
Duplex 127 – 164 m2 15 – 24 tỷ 26 – 37 triệu/tháng
Penthouse 183 m2 27 – 40 tỷ 38 – 41 triệu/tháng

Vì sao căn hộ Zenity được nhiều khách hàng lựa chọn?

Hoàn thiện và sẵn sàng nhận nhà

Dưới sự chuẩn bị kỹ lưỡng, Zenity Quận 1 đã hoàn thiện và sẵn sàng bàn giao cho cư dân, đáp ứng nhu cầu cấp bách về nhà ở tại trung tâm thành phố.

Cam kết về pháp lý và an toàn tài sản

Với các thủ tục pháp lý hoàn chỉnh, cư dân sẽ hoàn toàn yên tâm về quyền lợi và an toàn tài sản của mình tại Zenity.

Tiện ích nội khu đa dạng và đẳng cấp

Với hơn 20 tiện ích được thiết kế tinh tế, Zenity đảm bảo đáp ứng đầy đủ nhu cầu sống và giải trí của cư dân.

Vị trí và lợi thế địa lý

Vị trí trung tâm tại đại lộ Võ Văn Kiệt giúp cư dân tận hưởng không gian sống tuyệt vời và tiện lợi cho việc di chuyển.

Một số hình ảnh thực tế của dự án Zenity

Review dự án Zenity: Ốc đảo xanh giữa lòng đô thị năng độngDự án ZenityReview dự án Zenity: Ốc đảo xanh giữa lòng đô thị năng độngDự án Zenity

Dự án Zenity chắc chắn sẽ là một lựa chọn lý tưởng cho những ai đang tìm kiếm một nơi sống đẳng cấp tại trung tâm TP.HCM. Hãy truy cập sanctuaryvillas.com.vn để tìm hiểu thêm về các dự án bất động sản khác cũng như thông tin hữu ích cho quyết định đầu tư của bạn.

Share
facebookShare on FacebooktwitterShare on TwitterpinterestShare on Pinterest
linkedinShare on LinkedinvkShare on VkredditShare on ReddittumblrShare on TumblrviadeoShare on ViadeobufferShare on BufferpocketShare on PocketwhatsappShare on WhatsappviberShare on ViberemailShare on EmailskypeShare on SkypediggShare on DiggmyspaceShare on MyspacebloggerShare on Blogger YahooMailShare on Yahoo mailtelegramShare on TelegramMessengerShare on Facebook Messenger gmailShare on GmailamazonShare on AmazonSMSShare on SMS
Post navigation
Previous post

Review mặt bằng khu Sala: Các dự án cho thuê văn phòng và mặt bằng kinh doanh giá “siêu hời”

Next post

Angsana Quan Lạn Quảng Ninh Resort

Related Posts

Categories Tin tức Review dự án Zenity: Ốc đảo xanh giữa lòng đô thị năng động

Khu nghỉ dưỡng được làm hoàn toàn từ gỗ ở Bali

Categories Tin tức Review dự án Zenity: Ốc đảo xanh giữa lòng đô thị năng động

Nghỉ dưỡng tại Maximilan Đà Nẵng và trải ngiệm chiêm ngưỡng biển Mỹ Khê thơ mộng từ trên cao

Categories Tin tức Review dự án Zenity: Ốc đảo xanh giữa lòng đô thị năng động

Trải nghiệm khám phá chất lượng nghỉ dưỡng 5 sao cao cấp tại trung tâm thủ đô ‘xứ củ sâm’ – JW Marriott Hotel Seoul

Leave a Comment Hủy

Bài viết mới nhất

Categories Uncategorized Thống kê lô đề chuẩn xác

Thống kê lô đề chuẩn xác tăng tỷ lệ thắng với dữ liệu chi tiết

thống kê cầu bạch thủ đề

Thống kê cầu bạch thủ đề bí quyết vàng giúp chọn số chuẩn xác

thống kê cầu loto hôm nay

Thống kê cầu loto hôm nay hé lộ bí quyết trúng thưởng dễ dàng

thống kê xổ số trực tuyến

Thống kê xổ số trực tuyến giúp bạn dự đoán chuẩn xác mỗi ngày

xổ số kiến thiết online

Xổ số kiến thiết online – Mua vé tiện lợi, nhận thưởng an toàn và nhanh chóng

Xổ số truyền thống đổi thưởng

Xổ số truyền thống đổi thưởng – Giữ nguyên sức hút, rút tiền nhanh chóng

xổ số 3 miền online

Xổ số 3 miền online – Hướng dẫn chi tiết, kết quả và mẹo chơi hiệu quả

xổ số miền Nam trực tuyến

Xổ số miền Nam trực tuyến – Hướng dẫn chi tiết nhất

Xổ số miền Bắc trực tuyến

Xổ số miền Bắc trực tuyến – Cập nhật kết quả và soi cầu chính xác nhất 2025

xổ số miền Trung trực tuyến

Xổ số miền Trung trực tuyến – Hướng dẫn & Thống kê chi tiết

Giới thiệu

SANCTUARYVILLAS.VN là nền tảng đánh giá và chia sẻ thông tin về các khách sạn và villa uy tín tại Việt Nam, giúp người dùng dễ dàng tìm kiếm và lựa chọn nơi lưu trú phù hợp nhất.

Liên kết đối tác: Ax88 – bingo-online.us.com

Liên hệ

Phone: 0916 878 080
Emmail: contact@cymbalta.company
Địa chỉ: 109 Trần Hưng Đạo, Cửa Nam, Cầu Giấy, Hà Nội, Việt Nam

Trang liên hệ

  • Trang chủ
Copyright © 2025 sanctuaryvillas.com.vn
Danh mục
  • Trang chủ
  • Khách sạn
  • Villa
  • Tin tức