Skip to content
sanctuaryvillas.com.vn
  • Trang chủ
  • Khách sạn
  • Villa
  • Tin tức
sanctuaryvillas.com.vn

Review chung cư Opal Boulevard: Ý tưởng mang tiện ích nội khu lên lưng chừng trời

By Tháng 4 2, 2025 0
Mục lục

 

Lấy cảm hứng từ vẻ đẹp lấp lánh của những viên đá quý, dự án Opal Boulevard tọa lạc tại khu vực trung tâm thành phố Dĩ An, Bình Dương, là một trong những khu đô thị đẳng cấp được đầu tư phát triển bởi Đất Xanh Group. Với không gian sống hiện đại và tiện ích phong phú, Opal Boulevard hứa hẹn sẽ là một lựa chọn lý tưởng cho những ai đang tìm kiếm một môi trường sống văn minh, đầy đủ tiện nghi trong thời đại số.

Tổng quan về dự án Opal Boulevard

Dự án Opal Boulevard được xây dựng trên diện tích gần 15ha, với hàng loạt tiện ích nổi bật thư giãn cho cư dân. Nơi đây không chỉ thu hút những người yêu thích cuộc sống sôi động mà còn là nơi tuyệt vời cho các gia đình tìm kiếm một cộng đồng an cư, sử dụng các dịch vụ cao cấp. Giá bán căn hộ chỉ dao động từ 30 đến 40 triệu đồng/m², giúp nhiều người dân có cơ hội sở hữu không gian sống lý tưởng.

Tên dự án Opal Boulevard
Vị trí 18 Kha Vạn Cân, P.An Bình, TP. Dĩ An, Bình Dương
Chủ đầu tư Công ty Cổ phần Đầu tư Kinh doanh Bất động sản Hà An
Tổng diện tích 14,757.3 m²
Diện tích xây dựng 162,345 m²
Mật độ xây dựng 36.3 %
Loại hình sản phẩm Căn hộ chung cư, Thương Mại, Dịch Vụ, Văn Phòng, Shophouse, Officetel
Quy mô 02 tháp A & B cao 35 tầng, tổng cộng 1,446 sản phẩm
Khởi công Quý I/2019
Bàn giao Quý IV/2021
Pháp lý Sổ hồng
Hình thức sở hữu Người Việt: Lâu dài; Người nước ngoài: 50 năm theo luật pháp hiện hành

Vị trí đắc địa của Opal Boulevard

Review chung cư Opal Boulevard: Ý tưởng mang tiện ích nội khu lên lưng chừng trờiVị trí chung cư Opal Boulevard

Opal Boulevard phương vị chiến lược ngay cạnh đại lộ Phạm Văn Đồng. Đây là điểm giao thoa của các khu vực như TPHCM, Bình Dương và Đồng Nai, mang lại khả năng tiếp cận nhanh chóng đến nhiều tiện ích và dịch vụ cần thiết cho cuộc sống hàng ngày. Bên cạnh đó, cư dân tương lai của Opal Boulevard còn được hưởng lợi từ hệ thống giao thông thuận tiện và các tiện ích xung quanh như:

  • Bệnh viện Đa khoa Hoàn Hảo chỉ trong 1 phút đi bộ.
  • Đại học Quốc gia TPHCM cách khoảng 5 phút.
  • Trung tâm thương mại MegaMall, CGV Cinema, và nhiều địa điểm giải trí khác chỉ trong vòng 7 phút.
  • Khu vực siêu thị và tiện ích khác như Coopmart, Emart chỉ mất từ 10 đến 15 phút.
  • Sân bay Tân Sơn Nhất và Bệnh viện Quốc tế Hạnh Phúc chỉ mất khoảng 15 đến 20 phút.

Review chung cư Opal Boulevard: Ý tưởng mang tiện ích nội khu lên lưng chừng trờiTiện ích ngoại khu quanh Opal Boulevard

Tiện ích đẳng cấp tại Opal Boulevard

Chung cư Opal Boulevard được trang bị hơn 25 tiện ích nội khu hiện đại, phục vụ nhu cầu giải trí và sinh hoạt cho cư dân. Một vài tiện ích nổi bật phải kể đến là:

  • Hồ bơi vô cực
  • Sân vườn trên cao
  • Phòng tập gym và yoga
  • Khu vui chơi trẻ em
  • Khu BBQ và khu ghế ngồi ngoài trời
  • Sky bar ngắm cảnh tuyệt đẹp

Review chung cư Opal Boulevard: Ý tưởng mang tiện ích nội khu lên lưng chừng trờiHồ bơi vô cực tại Opal Boulevard

Tất cả các tiện ích này đều nằm trong khuôn viên dự án, đảm bảo mang đến cho cư dân sự tiện lợi tối ưu mà không cần phải di chuyển xa.

Mặt bằng dự án Opal Boulevard

Dự án chung cư Opal Boulevard được thiết kế với tổng diện tích 14.757 m2, gồm 02 block cao 35 tầng, cung cấp gần 1.500 căn hộ. Mật độ xây dựng chỉ 31%, mang lại không gian sống trong lành, gần gũi với thiên nhiên.

Review chung cư Opal Boulevard: Ý tưởng mang tiện ích nội khu lên lưng chừng trờiMặt bằng tổng thể dự án Opal Boulevard

Thiết kế căn hộ tại Opal Boulevard

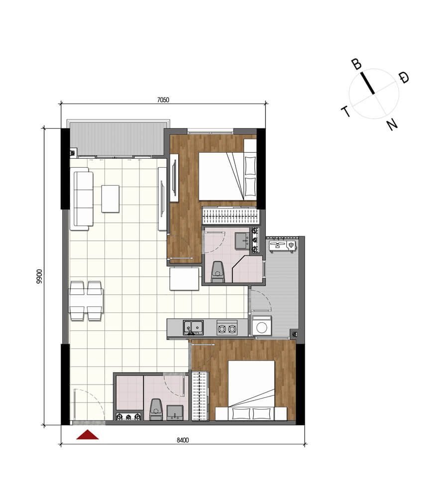
Mỗi căn hộ tại Opal Boulevard đều được thiết kế một cách tối ưu, khai thác triệt để ánh sáng và không khí tự nhiên, từ đó tạo ra không gian sống thoải mái và gần gũi với thiên nhiên. Các loại hình căn hộ có từ 2 đến 3 phòng ngủ, đáp ứng nhu cầu đa dạng của cư dân.

Review chung cư Opal Boulevard: Ý tưởng mang tiện ích nội khu lên lưng chừng trờiThiết kế căn hộ 2 phòng ngủ tại Opal Boulevard

Giá bán và giá thuê căn hộ Opal Boulevard cập nhật mới nhất

Giá bán căn hộ tại Opal Boulevard hiện dao động từ 30,3 đến 35,8 triệu đồng/m², trong khi giá thuê khoảng từ 6,5 triệu đến 12 triệu đồng/tháng. Đây là mức giá rất hợp lý so với vị trí đắc địa và tiện ích đẳng cấp mà dự án mang lại.

Căn hộ Diện tích Giá bán Giá thuê
2PN + 2WC 73 – 85m2 2,25 – 3,07 tỷ 6.5 – 13 triệu
3PN + 2WC 95 – 107m2 3 – 3,8 tỷ 10 – 17 triệu
Shophouse 67-165m² 65 – 80 triệu/m² 30 – 150 triệu

Tại sao nên đầu tư vào Opal Boulevard?

Opal Boulevard không chỉ là nơi an cư lý tưởng mà còn là cơ hội đầu tư tiềm năng. Những điểm mạnh nổi bật của dự án đó là:

Vị trí đắc địa

Chiến lược phát triển khu đô thị thuận lợi với kết nối giao thông tốt và ở gần các tiện ích sống cần thiết.

Tiện ích nội khu đẳng cấp

Với nhiều tiện ích nhằm phục vụ cư dân mà không cần phải đi xa mang đến một cuộc sống tiện nghi.

Tiềm năng sinh lời

Bất động sản khu vực này không ngừng phát triển, hứa hẹn mang lại lợi nhuận cao cho nhà đầu tư.

An ninh và dịch vụ chuyên nghiệp

Hệ thống an ninh 24/7 và dịch vụ chăm sóc cư dân đảm bảo cuộc sống an toàn và thoải mái.

Chủ đầu tư uy tín

Đất Xanh Group đã khẳng định được danh tiếng và chất lượng trong ngành bất động sản suốt nhiều năm qua.

Hình ảnh thực tế của Opal Boulevard

Review chung cư Opal Boulevard: Ý tưởng mang tiện ích nội khu lên lưng chừng trờiHình ảnh thực tế 1 của Opal Boulevard

Review chung cư Opal Boulevard: Ý tưởng mang tiện ích nội khu lên lưng chừng trờiHình ảnh thực tế 2 của Opal Boulevard

Review chung cư Opal Boulevard: Ý tưởng mang tiện ích nội khu lên lưng chừng trờiHình ảnh thực tế 3 của Opal Boulevard

Opal Boulevard đang nổi lên như là một viên ngọc quý giữa lòng Sài Gòn, cung cấp một không gian sống đẳng cấp cùng cơ hội đầu tư hấp dẫn. Hãy truy cập sanctuaryvillas.com.vn để cập nhật thêm thông tin và lựa chọn cho mình một không gian sống lý tưởng.

Share
facebookShare on FacebooktwitterShare on TwitterpinterestShare on Pinterest
linkedinShare on LinkedinvkShare on VkredditShare on ReddittumblrShare on TumblrviadeoShare on ViadeobufferShare on BufferpocketShare on PocketwhatsappShare on WhatsappviberShare on ViberemailShare on EmailskypeShare on SkypediggShare on DiggmyspaceShare on MyspacebloggerShare on Blogger YahooMailShare on Yahoo mailtelegramShare on TelegramMessengerShare on Facebook Messenger gmailShare on GmailamazonShare on AmazonSMSShare on SMS
Post navigation
Previous post

Review chung cư Ehome 3: Cộng đồng dân cư mới hội tụ đầy đủ tiện ích chất lượng

Next post

Review Vinhomes Hóc Môn – Khu đô thị đại học quốc tế

Related Posts

Categories Chung cư Review chung cư Opal Boulevard: Ý tưởng mang tiện ích nội khu lên lưng chừng trời

Review Astral City Bình Dương: Thành phố của những vì sao tại thủ phủ công nghiệp

Categories Chung cư Review chung cư Opal Boulevard: Ý tưởng mang tiện ích nội khu lên lưng chừng trời

Review D-homme Quận 6: khởi nguồn mạch sống và kiến tạo phồn vinh

Categories Chung cư Review chung cư Opal Boulevard: Ý tưởng mang tiện ích nội khu lên lưng chừng trời

Review chung cư Lovera Vista cho khách hàng muốn an cư, đầu tư sinh lời cao

Leave a Comment Hủy

Bài viết mới nhất

Categories Uncategorized Thống kê lô đề chuẩn xác

Thống kê lô đề chuẩn xác tăng tỷ lệ thắng với dữ liệu chi tiết

thống kê cầu bạch thủ đề

Thống kê cầu bạch thủ đề bí quyết vàng giúp chọn số chuẩn xác

thống kê cầu loto hôm nay

Thống kê cầu loto hôm nay hé lộ bí quyết trúng thưởng dễ dàng

thống kê xổ số trực tuyến

Thống kê xổ số trực tuyến giúp bạn dự đoán chuẩn xác mỗi ngày

xổ số kiến thiết online

Xổ số kiến thiết online – Mua vé tiện lợi, nhận thưởng an toàn và nhanh chóng

Xổ số truyền thống đổi thưởng

Xổ số truyền thống đổi thưởng – Giữ nguyên sức hút, rút tiền nhanh chóng

xổ số 3 miền online

Xổ số 3 miền online – Hướng dẫn chi tiết, kết quả và mẹo chơi hiệu quả

xổ số miền Nam trực tuyến

Xổ số miền Nam trực tuyến – Hướng dẫn chi tiết nhất

Xổ số miền Bắc trực tuyến

Xổ số miền Bắc trực tuyến – Cập nhật kết quả và soi cầu chính xác nhất 2025

xổ số miền Trung trực tuyến

Xổ số miền Trung trực tuyến – Hướng dẫn & Thống kê chi tiết

Giới thiệu

SANCTUARYVILLAS.VN là nền tảng đánh giá và chia sẻ thông tin về các khách sạn và villa uy tín tại Việt Nam, giúp người dùng dễ dàng tìm kiếm và lựa chọn nơi lưu trú phù hợp nhất.

Liên kết đối tác: Ax88 – bingo-online.us.com

Liên hệ

Phone: 0916 878 080
Emmail: contact@cymbalta.company
Địa chỉ: 109 Trần Hưng Đạo, Cửa Nam, Cầu Giấy, Hà Nội, Việt Nam

Trang liên hệ

  • Trang chủ
Copyright © 2025 sanctuaryvillas.com.vn
Danh mục
  • Trang chủ
  • Khách sạn
  • Villa
  • Tin tức