Skip to content
sanctuaryvillas.com.vn
  • Trang chủ
  • Khách sạn
  • Villa
  • Tin tức
sanctuaryvillas.com.vn

Review chung cư Miếu Nổi: môi trường sống cộng đồng dân cư văn minh

By Tháng 4 2, 2025 0
chung cư Miếu Nổi
Mục lục

Chung cư Miếu Nổi không chỉ là một dự án căn hộ thông thường, mà còn là một biểu tượng của cuộc sống hiện đại, tọa lạc tại vị trí chiến lược giữa lòng quận Bình Thạnh, TP. Hồ Chí Minh. Với sự phát triển đồng bộ cùng đầy đủ tiện ích, nơi đây hứa hẹn sẽ mang đến cho người dân một không gian sống thoải mái, tiện nghi và gần gũi với thiên nhiên.

Review chung cư Miếu Nổi: môi trường sống cộng đồng dân cư văn minhChung cư Miếu Nổi

Thông tin tổng quan chung cư Miếu Nổi

Chủ đầu tư Tổng Công ty Xây dựng số 1 (CC1)
Vị trí dự án Số 37 đường Vũ Huy Tấn, Phường 3, Quận Bình Thạnh, TP Hồ Chí Minh
Quy mô dự án 80,000 m²
Diện tích căn hộ 54 – 66 m²
Số căn hộ 500 căn
Số tầng 1 Block, 18 tầng
Năm bàn giao 2000
Tiện ích Cây xanh, hạ tầng hoàn thiện, hệ thống cấp nước, điện, xử lý rác thải, thông tin liên lạc, phòng cháy chữa cháy

Vị trí dự án chung cư Miếu Nổi

Với vị trí đắc địa, chung cư Miếu Nổi mang lại cho cư dân cơ hội kết nối nhanh chóng với các khu vực lân cận qua các tuyến đường lớn như Trường Sa, Phan Xích Long, Lê Văn Duyệt và cầu Hoàng Hoa Thám. Điều này giúp việc di chuyển đến các quận trung tâm của thành phố trở nên dễ dàng và thuận tiện.

  • Chung cư Miếu Nổi → đường Vũ Huy Tấn → đường Trường Sa → cầu Hoàng Hoa Thám → Di chuyển về trung tâm quận 1
  • Chung cư Miếu Nổi → đường Vũ Huy Tấn → đường Phan Xích Long → Bệnh viện Đa khoa Hoàn Mỹ Sài Gòn → Về quận Phú Nhuận
  • Chung cư Miếu Nổi → đường Vũ Huy Tấn → đường Lê Văn Duyệt → Bệnh viện Bình Thạnh, Bệnh viện Nhân Dân Gia Định → Trở về quận Bình Thạnh

Review chung cư Miếu Nổi: môi trường sống cộng đồng dân cư văn minhVị trí dự án chung cư Miếu Nổi

Tiện ích nội khu chung cư Miếu Nổi

Chung cư Miếu Nổi được đánh giá cao nhờ sự chú trọng vào tiện ích nội khu. Dù đã qua nhiều năm, các không gian sống tại đây vẫn được thiết kế hiện đại và đồng bộ với các xu hướng sống của thế giới. Trong vài phút, cư dân có thể tiếp cận với nhiều tiện ích như:

  • Phòng sinh hoạt cộng đồng
  • Sân thể thao ngoài trời
  • Công viên xanh
  • Văn phòng
  • Siêu thị
  • Hệ thống cấp thoát nước
  • Hệ thống thông tin liên lạc
  • Khu xử lý rác thải
  • Hệ thống phòng cháy, chữa cháy
  • An ninh được đảm bảo 24/24

Review chung cư Miếu Nổi: môi trường sống cộng đồng dân cư văn minhCác tiện ích nội khu

Review chung cư Miếu Nổi: môi trường sống cộng đồng dân cư văn minhSân thể thao ngoài trời rộng rãi

Tiện ích ngoại khu chung cư Miếu Nổi

Không chỉ nội khu, khu vực xung quanh chung cư Miếu Nổi cũng rất phong phú về tiện ích. Các cư dân có thể dễ dàng tiếp cận nhiều dịch vụ cần thiết trong bán kính gần như trường học, hồ bơi, siêu thị và công viên.

  • 300m: Trường Tiểu Học Trần Quang Khải
  • 450m: CGV IMC Trần Quang Khải, Trung Tâm Văn Hóa Đa Năng quận 1
  • 500m: Hồ Bơi Thiếu Nhi Rạch Miễu
  • 650m: Co.opmart Rạch Miễu
  • 1km: Trường Cao Đẳng Kinh Tế Đối Ngoại
  • 1,1km: Trường THPT Hoàng Hoa Thám
  • 1,5km: Công Viên Lê Văn Tám
  • 1,6km: Trường Đại học Kinh tế Tài chính TP.HCM

Hạ tầng và quy hoạch của dự án

Mặt bằng tổng thể

Chung cư Miếu Nổi có một mặt bằng tổng thể rộng lớn lên đến 8ha. Dự án được thiết kế với một block cao 18 tầng, cung cấp tổng cộng 500 căn hộ phục vụ cho nhu cầu an cư của cư dân.

Review chung cư Miếu Nổi: môi trường sống cộng đồng dân cư văn minhMặt bằng tổng thể

Mặt bằng chi tiết

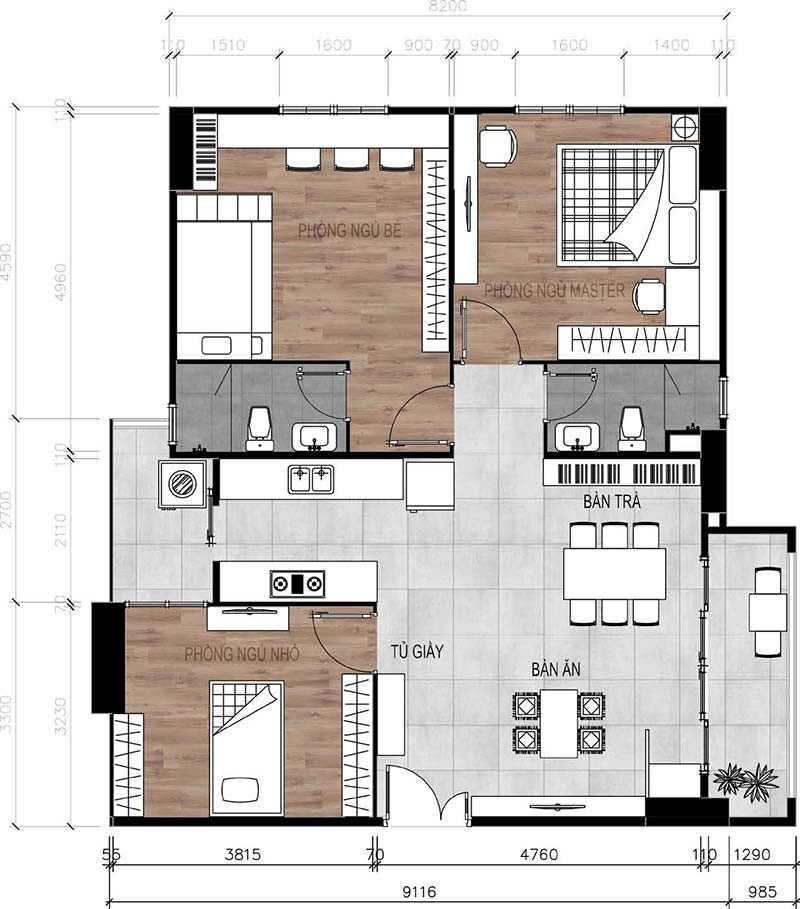
Các căn hộ tại chung cư Miếu Nổi được bố trí từ 1 đến 3 phòng ngủ, với diện tích từ 54 đến 66m2, phù hợp cho nhiều đối tượng cư dân từ gia đình có con cái đến cặp vợ chồng trẻ hay người sống độc thân, mang lại tính tiện nghi tối ưu nhất cho cuộc sống hàng ngày.

Review chung cư Miếu Nổi: môi trường sống cộng đồng dân cư văn minhMặt bằng thiết kế căn hộ

Review chung cư Miếu Nổi: môi trường sống cộng đồng dân cư văn minhBản vẽ thiết kế nội thất chung cư

Hình ảnh thực tế chung cư Miếu Nổi

Review chung cư Miếu Nổi: môi trường sống cộng đồng dân cư văn minhThiết kế nội thất phòng khách

Review chung cư Miếu Nổi: môi trường sống cộng đồng dân cư văn minhThiết kế nội thất phòng bếp

Review chung cư Miếu Nổi: môi trường sống cộng đồng dân cư văn minhThiết kế nội thất phòng ngủ

Review chung cư Miếu Nổi: môi trường sống cộng đồng dân cư văn minhCăn hộ mẫu

Giá bán và giá thuê dự án

Chung cư Miếu Nổi có mức giá bán hấp dẫn. Hiện tại, giá chuyển nhượng chỉ từ 26 – 50 triệu/m2, tương đương 1,75 tỷ cho một căn hộ đầy đủ tiện nghi.

Giá thuê căn hộ tại đây cũng rất cạnh tranh:

  • Căn hộ 1 phòng ngủ: 5 – 6 triệu/tháng (nội thất cơ bản), 7 – 8 triệu/tháng (full nội thất)
  • Căn hộ 2 phòng ngủ: 9 – 10 triệu/tháng (nội thất cơ bản), 11 – 12 triệu/tháng (full nội thất)
  • Căn hộ 3 phòng ngủ: 14 – 15 triệu/tháng (full nội thất)

Chủ đầu tư Tổng Công ty Xây dựng số 1 (CC1)

Tổng Công ty Xây dựng Số 1 (CC1) là một trong những đơn vị uy tín hàng đầu tại Việt Nam trong lĩnh vực xây dựng, với hơn 40 năm kinh nghiệm trong thiết kế và xây dựng hạ tầng, các công trình dân dụng.

Review chung cư Miếu Nổi: môi trường sống cộng đồng dân cư văn minhTổng Công ty Xây dựng Số 1

Với triết lý “Xây dựng khát vọng Việt”, CC1 không ngừng cung cấp dịch vụ xây lắp chất lượng và trở thành một đối tác đáng tin cậy trong ngành xây dựng.

Các lý do nên lựa chọn mua căn hộ chung cư Miếu Nổi

  • Vị trí thuận lợi: Chung cư Miếu Nổi nằm trong khu vực dân cư sầm uất, đảm bảo an ninh và môi trường sống tốt cho cư dân.
  • Hạ tầng hoàn thiện: Các hệ thống cấp thoát nước, điện và khu xử lý rác thải được xây dựng đạt tiêu chuẩn, mang lại sự tiện nghi.
  • Tiện ích đa dạng ở ngoại khu: Nhiều dịch vụ cần thiết chỉ trong bán kính 2km, đảm bảo cuộc sống hàng ngày tiện lợi cho cư dân.

Review chung cư Miếu Nổi: môi trường sống cộng đồng dân cư văn minhcăn hộ chung cư Miếu Nổi

Nếu bạn quan tâm đến những thông tin trên và muốn tìm hiểu thêm về các lựa chọn lưu trú đẳng cấp, hãy truy cập sanctuaryvillas.com.vn để cập nhật thông tin mới nhất!

Share
facebookShare on FacebooktwitterShare on TwitterpinterestShare on Pinterest
linkedinShare on LinkedinvkShare on VkredditShare on ReddittumblrShare on TumblrviadeoShare on ViadeobufferShare on BufferpocketShare on PocketwhatsappShare on WhatsappviberShare on ViberemailShare on EmailskypeShare on SkypediggShare on DiggmyspaceShare on MyspacebloggerShare on Blogger YahooMailShare on Yahoo mailtelegramShare on TelegramMessengerShare on Facebook Messenger gmailShare on GmailamazonShare on AmazonSMSShare on SMS
Post navigation
Previous post

Review chung cư M-One: Tận hưởng chất lượng sống đẳng cấp với các giá trị vượt trội

Next post

Review các dự án nhà ở hình thành trong tương lai tại Bình Dương – Phần 1

Related Posts

Categories Tin tức Review chung cư Miếu Nổi: môi trường sống cộng đồng dân cư văn minh

Khu nghỉ dưỡng được làm hoàn toàn từ gỗ ở Bali

Categories Tin tức Review chung cư Miếu Nổi: môi trường sống cộng đồng dân cư văn minh

Nghỉ dưỡng tại Maximilan Đà Nẵng và trải ngiệm chiêm ngưỡng biển Mỹ Khê thơ mộng từ trên cao

Categories Tin tức Review chung cư Miếu Nổi: môi trường sống cộng đồng dân cư văn minh

Trải nghiệm khám phá chất lượng nghỉ dưỡng 5 sao cao cấp tại trung tâm thủ đô ‘xứ củ sâm’ – JW Marriott Hotel Seoul

Leave a Comment Hủy

Bài viết mới nhất

Categories Uncategorized Thống kê lô đề chuẩn xác

Thống kê lô đề chuẩn xác tăng tỷ lệ thắng với dữ liệu chi tiết

thống kê cầu bạch thủ đề

Thống kê cầu bạch thủ đề bí quyết vàng giúp chọn số chuẩn xác

thống kê cầu loto hôm nay

Thống kê cầu loto hôm nay hé lộ bí quyết trúng thưởng dễ dàng

thống kê xổ số trực tuyến

Thống kê xổ số trực tuyến giúp bạn dự đoán chuẩn xác mỗi ngày

xổ số kiến thiết online

Xổ số kiến thiết online – Mua vé tiện lợi, nhận thưởng an toàn và nhanh chóng

Xổ số truyền thống đổi thưởng

Xổ số truyền thống đổi thưởng – Giữ nguyên sức hút, rút tiền nhanh chóng

xổ số 3 miền online

Xổ số 3 miền online – Hướng dẫn chi tiết, kết quả và mẹo chơi hiệu quả

xổ số miền Nam trực tuyến

Xổ số miền Nam trực tuyến – Hướng dẫn chi tiết nhất

Xổ số miền Bắc trực tuyến

Xổ số miền Bắc trực tuyến – Cập nhật kết quả và soi cầu chính xác nhất 2025

xổ số miền Trung trực tuyến

Xổ số miền Trung trực tuyến – Hướng dẫn & Thống kê chi tiết

Giới thiệu

SANCTUARYVILLAS.VN là nền tảng đánh giá và chia sẻ thông tin về các khách sạn và villa uy tín tại Việt Nam, giúp người dùng dễ dàng tìm kiếm và lựa chọn nơi lưu trú phù hợp nhất.

Liên kết đối tác: Ax88 – bingo-online.us.com

Liên hệ

Phone: 0916 878 080
Emmail: contact@cymbalta.company
Địa chỉ: 109 Trần Hưng Đạo, Cửa Nam, Cầu Giấy, Hà Nội, Việt Nam

Trang liên hệ

  • Trang chủ
Copyright © 2025 sanctuaryvillas.com.vn
Danh mục
  • Trang chủ
  • Khách sạn
  • Villa
  • Tin tức