Skip to content
sanctuaryvillas.com.vn
  • Trang chủ
  • Khách sạn
  • Villa
  • Tin tức
sanctuaryvillas.com.vn

Review chung cư M-One: Tận hưởng chất lượng sống đẳng cấp với các giá trị vượt trội

By Tháng 4 2, 2025 0
M-One Nam Sài Gòn
Mục lục

Dự án chung cư M-One Nam Sài Gòn không chỉ đơn thuần là nơi để ở mà còn là một biểu tượng cho lối sống hiện đại và sang trọng tại Quận 7, TP.HCM. Với thiết kế tinh tế, tiện ích đa dạng và vị trí đắc địa, M-One nhanh chóng thu hút sự chú ý của nhiều khách hàng và nhà đầu tư. Hãy cùng khám phá những điểm nổi bật của dự án này.

Tổng Quan Về Chung Cư M-One Nam Sài Gòn

Chung cư M-One là một trong những dự án căn hộ cao cấp nổi bật tại khu vực Nam Sài Gòn với tổng số 963 căn hộ được xây dựng trên quy mô 13,903.8 m². Dưới bàn tay của những kiến trúc sư có tiếng, M-One mang đến không gian sống tiện nghi và hiện đại, đáp ứng mọi nhu cầu của cư dân.

Thông Tin Chi Tiết Về Chung Cư M-One

Tên Dự Án M-One Nam Sài Gòn
Vị Trí Số 35/12 Bế Văn Cấm, phường Tân Kiểng, Quận 7, TP.HCM
Chủ Đầu Tư Thảo Điền Investment
Tổng Diện Tích 13,903.8 m²
Mật Độ Xây Dựng 36,4%
Loại Hình Sản Phẩm Căn hộ cao cấp
Quy Mô 936 căn hộ, 179 Officetel, 10 Shophouse
Khởi Công Tháng 01/2016
Bàn Giao Tháng 04/2017
Pháp Lý Sổ hồng

Vị Trí Đắc Địa Của M-One Nam Sài Gòn

Review chung cư M-One: Tận hưởng chất lượng sống đẳng cấp với các giá trị vượt trộiVị trí chung cư M-One

Chung cư M-One được tọa lạc tại vị trí vàng trên mặt tiền đường Bế Văn Cấm, gần giao lộ Trần Xuân Soạn. Đây là khu vực giao thoa giữa các quận, tạo điều kiện thuận lợi cho cư dân di chuyển vào trung tâm thành phố.

  • Kết nối nhanh chóng đến các quận lân cận chỉ khoảng 10 – 15 phút di chuyển bằng xe, nhờ sự hiện diện của các cầu và đường lớn.
  • Tiện ích xung quanh phong phú như chợ Tân Quy, các bệnh viện, trường học và trung tâm thương mại giúp cư dân dễ dàng tiếp cận dịch vụ hàng ngày.

Tiện Ích Đẳng Cấp Tại Chung Cư M-One

Chung cư M-One được trang bị hệ thống tiện ích hiện đại, giúp cư dân tận hưởng cuộc sống thoải mái và tiện nghi. Dưới đây là một số tiện ích nổi bật:

  • Hồ bơi người lớn và trẻ em
  • Khu vườn cây xanh, BBQ ngoài trời
  • Khu thương mại, siêu thị mini
  • Khu vui chơi trẻ em và nhà giữ trẻ
  • Phòng gym và khu thể thao ngoài trời

Review chung cư M-One: Tận hưởng chất lượng sống đẳng cấp với các giá trị vượt trộiKhu hồ bơi M-One

Ngoài ra, không gian xanh mát tại dự án là nơi lý tưởng để cư dân thư giãn sau những giờ làm việc căng thẳng.

Mặt Bằng Chung Cư M-One Nam Sài Gòn

Dự án bao gồm hai tòa tháp cao 24 và 25 tầng, với các căn hộ được thiết kế thông minh, tối ưu không gian và ánh sáng tự nhiên.

Review chung cư M-One: Tận hưởng chất lượng sống đẳng cấp với các giá trị vượt trộiMặt bằng tổng thể dự án M-One Nam Sài Gòn

  • Tòa A và B: Các căn shophouse và khu vực siêu thị nằm ở tầng 1, 2, 3, còn các tầng trên dành cho căn hộ với mật độ dân cư hợp lý.

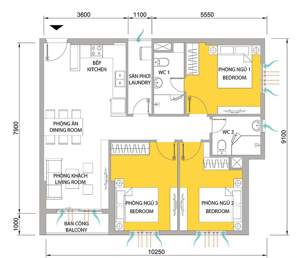
Thiết Kế Căn Hộ Đẳng Cấp Tại M-One

M-One cung cấp nhiều loại hình căn hộ với diện tích khác nhau, từ 57 đến 94 m², hoàn hảo cho sự lựa chọn đa dạng. Mỗi căn hộ được thiết kế tỉ mỉ, tối ưu hóa sự thoải mái cho cư dân.

Review chung cư M-One: Tận hưởng chất lượng sống đẳng cấp với các giá trị vượt trộiThiết kế căn hộ chung cư M-One Quận 7

  • Hướng view tuyệt đẹp: Cư dân có thể chọn căn hộ với các hướng nhìn như cầu Phú Mỹ, sông Kênh Tẻ hay trung tâm Quận 1, tạo nên không gian sống lý tưởng.

Bảng Giá Mới Nhất Của Căn Hộ M-One Nam Sài Gòn

Giá bán căn hộ tại M-One giao động từ 33,98 – 49,55 triệu/m². Dưới đây là bảng giá chi tiết:

Loại Hình Diện Tích Giá Bán Giá Thuê
Căn hộ 1PN từ 50 m² từ 2,6 – 2,7 tỷ từ 7,5 – 10,61 triệu/tháng
Căn hộ 2PN từ 58 – 73 m² từ 2,7 – 3,15 tỷ từ 11 – 13,94 triệu/tháng
Căn hộ 3PN từ 77 – 94 m² từ 3,5 – 3,85 tỷ từ 13,63 – 17,5 triệu/tháng
Duplex từ 45 – 80 m² từ 1,9 – 2,3 tỷ từ 7 – 11 triệu/tháng
Officetel từ 30 – 55 m² từ 1,6 – 2,25 tỷ từ 6 – 10 triệu/tháng
Shophouse từ 67 – 208 m² – từ 15 – 25 triệu/tháng

Tại Sao Nên Chọn Chung Cư M-One Nam Sài Gòn?

Chung cư M-One Nam Sài Gòn là địa điểm lý tưởng cho những gia đình trẻ và những ai đang tìm kiếm một không gian sống tiện nghi và hiện đại.

  • Vị trí chiến lược: Gần các trung tâm thương mại, trường học và bệnh viện giúp cư dân thuận tiện trong việc sinh hoạt hàng ngày.
  • Tiện ích phong phú: Đầy đủ các dịch vụ nội khu giúp cải thiện chất lượng cuộc sống.
  • Môi trường sống an toàn: Hệ thống an ninh 24/7 bảo đảm an toàn tối đa cho cư dân.
  • Tiềm năng đầu tư: Vị trí và tiện ích của M-One có thể gia tăng giá trị tài sản theo thời gian.

Hình Ảnh Thực Tế Tại Dự Án Chung Cư M-One

Review chung cư M-One: Tận hưởng chất lượng sống đẳng cấp với các giá trị vượt trộiHình ảnh thực tế của dự án chung cư M-One

Chung cư M-One Nam Sài Gòn không chỉ là nơi để ở mà còn là biểu tượng cho cuộc sống hiện đại, đẳng cấp và tiện nghi. Nếu bạn đang tìm kiếm một không gian sống lý tưởng tại TP.HCM, hãy lựa chọn M-One Nam Sài Gòn là điểm đến cho mình và gia đình.

Mọi thông tin chi tiết về dự án, hãy truy cập website sanctuaryvillas.com.vn.

Share
facebookShare on FacebooktwitterShare on TwitterpinterestShare on Pinterest
linkedinShare on LinkedinvkShare on VkredditShare on ReddittumblrShare on TumblrviadeoShare on ViadeobufferShare on BufferpocketShare on PocketwhatsappShare on WhatsappviberShare on ViberemailShare on EmailskypeShare on SkypediggShare on DiggmyspaceShare on MyspacebloggerShare on Blogger YahooMailShare on Yahoo mailtelegramShare on TelegramMessengerShare on Facebook Messenger gmailShare on GmailamazonShare on AmazonSMSShare on SMS
Post navigation
Previous post

Review dự án Phước Điền Midtown: Khu nhà phố liền kề cao cấp tại Bình Dương

Next post

Review Sky Garden Quận 7: vị trí đắc địa tiện lợi ngay cửa ngõ vào khu đô thị Phú Mỹ Hưng

Related Posts

Categories Tin tức Review chung cư M-One: Tận hưởng chất lượng sống đẳng cấp với các giá trị vượt trội

Khu nghỉ dưỡng được làm hoàn toàn từ gỗ ở Bali

Categories Tin tức Review chung cư M-One: Tận hưởng chất lượng sống đẳng cấp với các giá trị vượt trội

Nghỉ dưỡng tại Maximilan Đà Nẵng và trải ngiệm chiêm ngưỡng biển Mỹ Khê thơ mộng từ trên cao

Categories Tin tức Review chung cư M-One: Tận hưởng chất lượng sống đẳng cấp với các giá trị vượt trội

Trải nghiệm khám phá chất lượng nghỉ dưỡng 5 sao cao cấp tại trung tâm thủ đô ‘xứ củ sâm’ – JW Marriott Hotel Seoul

Leave a Comment Hủy

Bài viết mới nhất

Categories Uncategorized Thống kê lô đề chuẩn xác

Thống kê lô đề chuẩn xác tăng tỷ lệ thắng với dữ liệu chi tiết

thống kê cầu bạch thủ đề

Thống kê cầu bạch thủ đề bí quyết vàng giúp chọn số chuẩn xác

thống kê cầu loto hôm nay

Thống kê cầu loto hôm nay hé lộ bí quyết trúng thưởng dễ dàng

thống kê xổ số trực tuyến

Thống kê xổ số trực tuyến giúp bạn dự đoán chuẩn xác mỗi ngày

xổ số kiến thiết online

Xổ số kiến thiết online – Mua vé tiện lợi, nhận thưởng an toàn và nhanh chóng

Xổ số truyền thống đổi thưởng

Xổ số truyền thống đổi thưởng – Giữ nguyên sức hút, rút tiền nhanh chóng

xổ số 3 miền online

Xổ số 3 miền online – Hướng dẫn chi tiết, kết quả và mẹo chơi hiệu quả

xổ số miền Nam trực tuyến

Xổ số miền Nam trực tuyến – Hướng dẫn chi tiết nhất

Xổ số miền Bắc trực tuyến

Xổ số miền Bắc trực tuyến – Cập nhật kết quả và soi cầu chính xác nhất 2025

xổ số miền Trung trực tuyến

Xổ số miền Trung trực tuyến – Hướng dẫn & Thống kê chi tiết

Giới thiệu

SANCTUARYVILLAS.VN là nền tảng đánh giá và chia sẻ thông tin về các khách sạn và villa uy tín tại Việt Nam, giúp người dùng dễ dàng tìm kiếm và lựa chọn nơi lưu trú phù hợp nhất.

Liên kết đối tác: Ax88 – bingo-online.us.com

Liên hệ

Phone: 0916 878 080
Emmail: contact@cymbalta.company
Địa chỉ: 109 Trần Hưng Đạo, Cửa Nam, Cầu Giấy, Hà Nội, Việt Nam

Trang liên hệ

  • Trang chủ
Copyright © 2025 sanctuaryvillas.com.vn
Danh mục
  • Trang chủ
  • Khách sạn
  • Villa
  • Tin tức